RUT

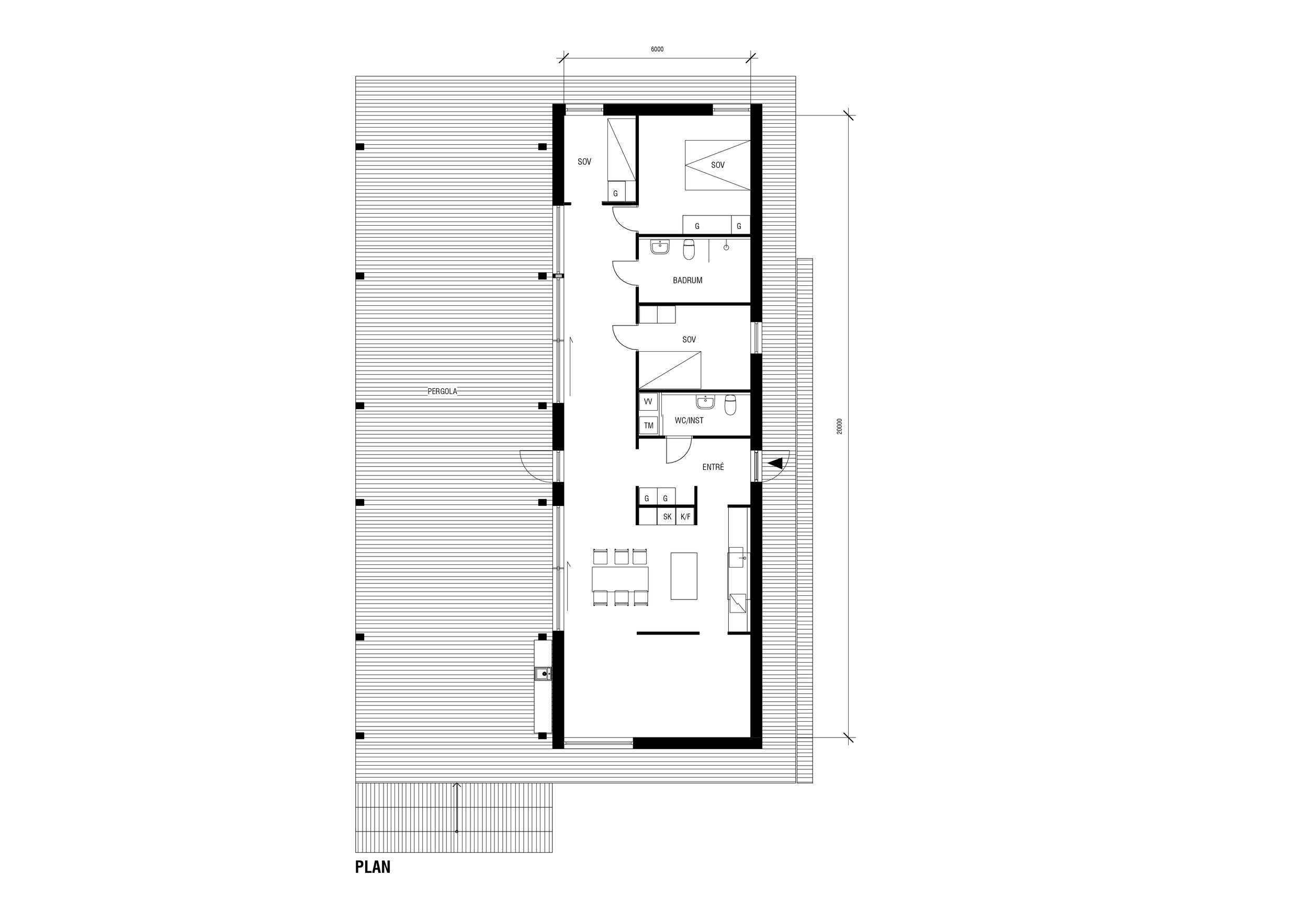
Villa eller fritidshus med hall, badrum, wc/tvättstuga, 3 sovrum, kök/allrum. Huset är ett enplanshus och har en smart planlösning med stor entré för många. Sovrum ligger avskilda från ljud och larm i köket. Vardagsrummets lugn har fått en separat avdelning. Längs hela sidan glas och skjutpartier mot en utsida under en pergola. Det är fina siktlinjer och utblickar åt alla håll. I gången finns plats för arbete, häng och lek. Ett fantastiskt hus sommartid när alla dörrar kan stå öppna och ute och inne blir sömlöst. Generös takhöjd på 2,96 m invändigt och synlig KL skiva i vägg och tak. Golv av isolerad betongplatta eller på plint med isolerad trossbotten.

120 KVM BOYTA

Föregående
Föregående

AMADEUS

Nästa
Nästa

FOLKE