FOLKE

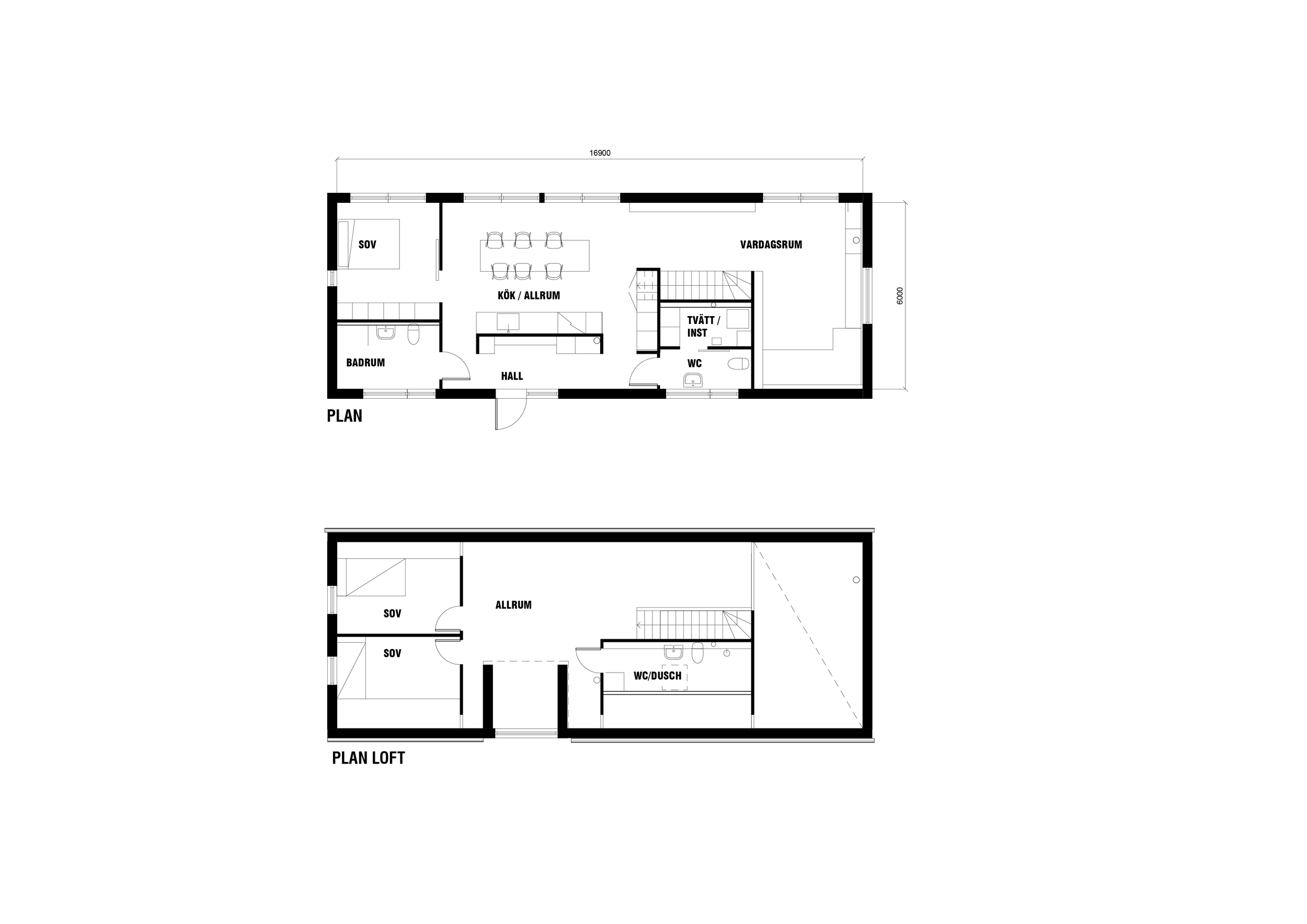
Villa eller fritidshus med hall, badrum, wc/tvättstuga, 3 sovrum, kök/allrum. Huset har en smart planlösning med stor entré för många. I entréplan en öppen planlösning med kök/allrum i mitten för umgänge och vardagsrum avskilt från det andra. På loftet finns plats för umgänge och sovrum och en extra toalett. Genom öppet till taknock över vardagsrum får man kontakt med övervåningen som kan titta ner. Mycket förvaring och lösningar för att få plats med allt som behövs i ett hem. Generös takhöjd på 2,65 m på nedre plan under loftgolvet. Synlig KL skiva i vägg och tak. Golv av isolerad betongplatta eller på plint med isolerad trossbotten.


102 KVM BOYTA + LOFT 84 KVM

Föregående
Föregående

RUT